Realizace

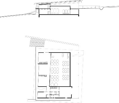
Sonberk a.s., vinařský dům v Popicích

Spolupráce s Isabelou Grosseovou, Andrejem Škripeňem, Zdeňkem Rudolfem, Jiřím Trčkou, Petrem Sýkorou (interiér)

Sonberk a.s., vinařský dům v Popicích
2007
Realizace 2007

Foto: Ivan Němec

Hledat