Projekt

Josefinum - adaptace Jezuitského semináře

Josefinum - adaptace Jezuitského semináře
2023

JOSEFINUM – ADAPTACE JEZUITSKÉHO SEMINÁŘE, KLATOVY / 2023

 

Spolupráce s  Michaelou Zucconi, Veronikou Škardovou, Jiřím Trčkou, Markétou Jurečkovou, Norbertem Schmidtem a Jiřím Vlachem

 

Dnes kout, zítra krásné zákoutí

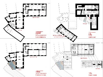
Jihozápadní část historického centra Klatov uvízla ve své nejzazší výspě v blízkosti hradeb ve slepé uličce. Exaktní pravidla pravoúhlého stavění jezuitů, která navíc byla v souladu se středověkými principy pravidelného uspořádání města, zde přestala fungovat. Zástavba se na tomto místě začala vzpouzet pravidlům, tříštila se a vznikaly dosti nesourodé stavební i prostorové fragmenty. Střety se středověkými hradbami, majetkoprávní chaos a dramatická terénní konfigurace dohnaly stavitele jezuitského semináře do anomálních architektonických tvarů a skladeb. Vznikl tak krásně neuspořádaný kout. Jeho půvab je dnes podmanivý, jeho neokázalá poezie je rozpoznatelná a zřetelná. Současnými novými zásahy jej lze dobře zpřehlednit, zpřístupnit, kontinuálně zprůchodnit, různě (poly)funkčně obsadit a společensky využívat. Lze zde odhalit historii, která byla zavalena vrstvou nánosů.

Z kouta se může stát silné nezaměnitelné místo. Dokonce křižovatka konkrétních pohybů i abstraktních energií se specifickým geniem. Veškeré jeho tvarové i mentální diskrepance se nabízejí k použití jako základní stavební kameny pro rozvoj originální romantické části města, která již nebude apendixem. Přestane být koutem a stane se atraktivním životem tepajícím zákoutím. Navíc s nově poskytnutými širokými výhledy do kraje.

 


Hledat